Skip to content
Vollander
architectuurstudio
Projecten
Werkwijze
Ecologisch bouwen
Atelier
Contact
LinkedIn
Facebook
Open mobile menu
Close mobile menu
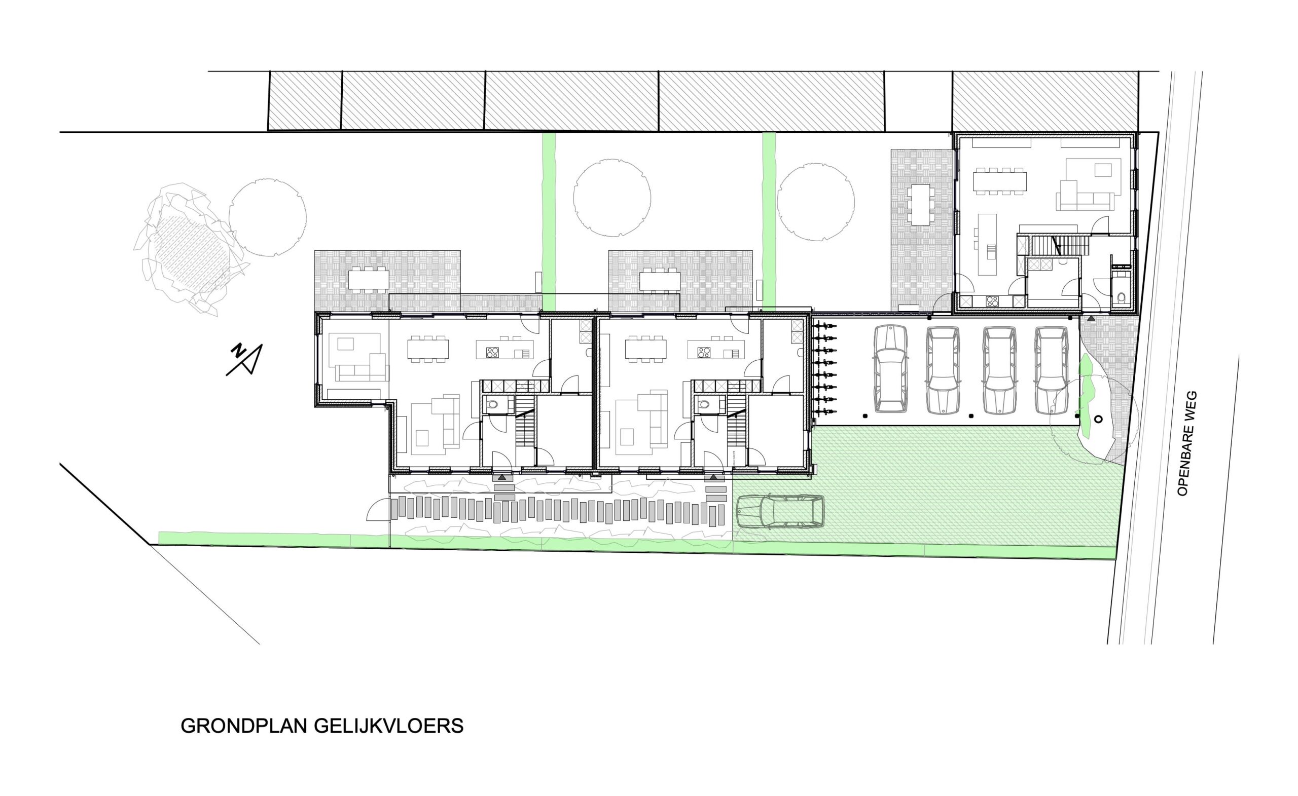
Groepswoningbouw Zwalm
Andere interessante Vollander realisaties
verbouwing (IER) woning Zwalm
verbouwing cottage-woning met praktijk – Zottegem
nieuwbouw halfopen bebouwing – Velzeke